AVAX自動排氣閥
AVAX自動排氣閥主要應用于暖通空調系統,往往安裝在制高點或彎頭等處,以排除管道中多余氣體、提高管道路使用效率及降低能耗。并消除氣阻,防止水流量減小而引起的冷熱不均等現象。
|
產品名稱: |
自動排氣閥 |
產品型號: |
AVAX |
|
公稱通徑: |
DN10~DN15~DN20~DN25 |
結構形式: |
浮球式 |
|
公稱壓力: |
1.6MPa |
連接方式: |
外螺紋 |
|
適用溫度: |
-15ºC~+100ºC |
驅動方式: |
自動 |
|
閥體材質: |
黃銅、不銹鋼 |
制造標準: |
國標GB、德國DIN、美國API、ANSI |
|
適用介質: |
水、給排水、污水等 |
生產廠家: |
上海凱利科閥門有限公司 |
產品說明
AVAX自動排氣閥主要應用于暖通空調系統,往往安裝在制高點或彎頭等處,以排除管道中多余氣體、提高管道路使用效率及降低能耗。并消除氣阻,防止水流量減小而引起的冷熱不均等現象。
工作原理
當系統中有氣體產生時,由于氣體的密度比水小,氣體會順著管道向上走,最終聚集在系統的高點,所以自動排氣閥一般都安裝在系統高點,在這里自動排氣閥的排氣效率最高。當氣體進入自動排氣閥閥腔聚集在自動排氣閥的上部,隨著閥內氣體的增多,氣體壓力上升。當氣體壓力大于系統壓力時,氣體會使腔內水面下降,浮筒隨水位一起下降,排氣口打開開始排氣;隨著氣體排出,氣壓降低,水位上升,浮筒也隨之上升,排氣口關閉。
工作原理圖

1、當沒有氣體時,浮子將會上升,機械機構保證銷針關閉排氣口。
2、當有氣體聚集時,浮子下降,銷針打開閥門,使氣體排出直到氣體排盡。
3、當系統中有氣體溢出時,氣體會順著管道向上爬,最終聚集在系統的最高點,而自動排氣閥一般都安裝在系統最高點,當氣體進入排氣閥閥腔聚集在排氣閥的上部,隨著閥內氣體的增多,壓力上升,當氣體壓力大于系統壓力時,氣體會使腔內水面下降,浮筒隨水位一起下降,打開排氣口;氣體排盡后,水位上升,浮筒也隨之上升,關閉排氣口。
4、同樣的原理,當系統中產生負壓,閥腔中水面下降,排氣口打開,由于此時外界大氣壓力比系統壓力大,所以大氣會通過排氣口進入系統,防止負壓的危害。如擰緊自動排氣閥閥體上的閥帽,自動排氣閥停止排氣,通常情況下,閥帽應該處于開啟狀態。
應用領域
廣泛應用于水處理設備、化工設備、石化設備、石油設備、造紙設備、采礦設備、電力設備配套、液化氣設備、食品設備、制藥設備、給排水設備、市政閥門、機械設備閥門、電子工業閥門,城建閥門、工業管道閥門、通用零部件、工業設備、消防暖通、中央空調、過濾設備、冶金設備、輕紡設備.環保設備等領域。
改進特點
1、普通排氣閥無內置過濾網,雜質易堵塞排氣嘴,設計不合理,彈簧有疲勞損,時間長了封不嚴,易漏水。
2、改進型暖氣自動排氣閥內置過濾網防止雜質進入排氣嘴,優質產品的重量是劣質產品質量的2倍。(需訂購)
3、質量可靠,性能穩定,一年免費更換,杜絕國產品牌排氣又排水的情況產生。
細節說明
 |
 |
|
可拆卸設計:人性化設計,可拆卸,使用更方便。 |
帶過濾網設計:帶有過濾網,可過濾比較大的雜質,防止雜質阻塞。 |
 |
 |
|
帶內外絲接頭:可接內外絲彎頭,使用更方便。 |
更多選擇:多種規格供您選擇,保證需求。 |
壓力試驗
|
公稱壓力 |
1.0MPa |
|
閥座試驗壓力 |
1.1MPa |
|
閥體試驗壓力 |
1.5MPa |
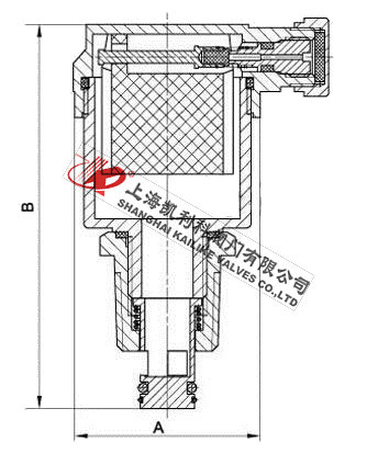
外形結構圖
主要外形尺寸
|
產品型號 |
公稱通徑 |
A |
B |
G |
|
AVAX |
10 |
49 |
87 |
3/8" |
|
AVAX |
15 |
49 |
87 |
1/2" |
|
AVAX |
20 |
49 |
87 |
3/4" |
|
AVAX |
25 |
49 |
87 |
1" |
安裝方式
1、自動排氣閥必須垂直安裝,必須保證閥體內浮筒處于豎直狀態,不能水平或倒立安裝;
由于氣體密度比水小,會沿著管道一直爬到系統最高點并聚集在此,為了提高排氣效率,排氣閥一般都安裝在系統的最高點;
2、為了便于檢修,排氣閥一般跟隔斷閥一起使用,這樣拆卸排氣閥是不需要關停系統;
暖氣排氣閥安裝好后必須擰松防塵帽才能排氣,但不能完全取掉,萬一發生排氣閥漏水,可擰緊防塵帽。
聲明:【AVAX自動排氣閥】規格型號、結構尺寸由上海凱利科閥門有限公司提供,如何選擇適用的AVAX自動排氣閥產品,使之在工藝控制中安全可靠、經濟適用,可致電我司銷售部門及技術部門,我們將在最短的時間內為您解答! |